About Me
Projects
Henry Art Gallery Renovation
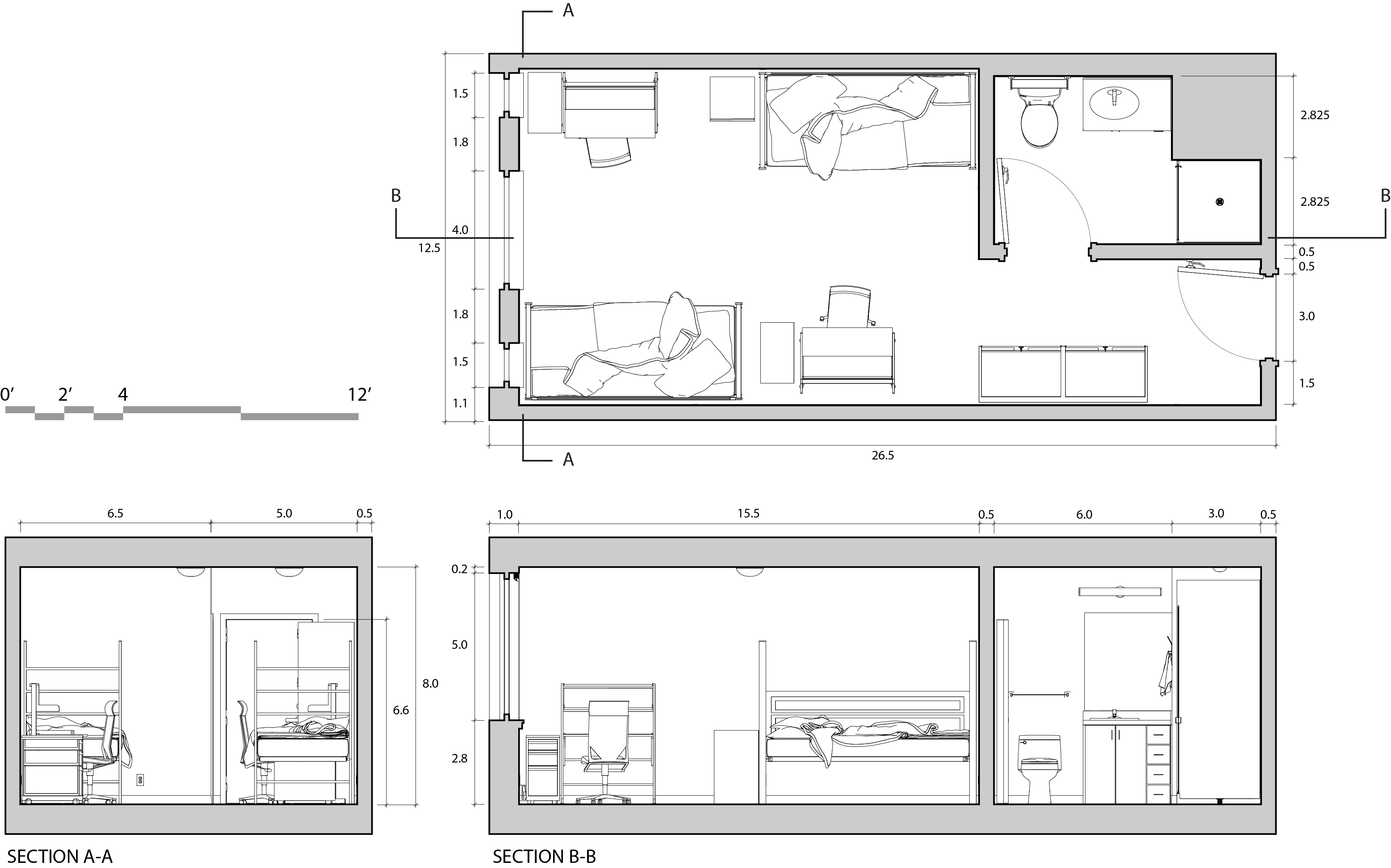
UW West Campus Dormitory Renovation
ARCH 300 Final
Olympic Sculpture Park
ARCH 201 Final
Pair
ARCH 200 Final
Object Analysis
Venice
Coast
Island
Greek Temple
Moon Bridge
Antelope Canyon
Interior
Santorini Island, Greece
Mirror's Edge Imitation
Guitar
Burger
iPhone 5.5?
Piano
Jeffrey Zhu
About Me
Projects
Henry Art Gallery Renovation
UW West Campus Dormitory Renovation
ARCH 300 Final
Olympic Sculpture Park
ARCH 201 Final
Pair
ARCH 200 Final
Object Analysis
Venice
Coast
Island
Greek Temple
Moon Bridge
Antelope Canyon
Interior
Santorini Island, Greece
Mirror's Edge Imitation
Guitar
Burger
iPhone 5.5?
Piano
Rendered image of Alder Hall with balconies
Axonometric depiction of a renovated room
Interior render
Existing structure and base photograph for the top image
Context
Orthographics
Axonometric drawing of existing structure
↑
Back to Top